サービス付き高齢者向け住宅 健やか
サービス付き高齢者向け住宅とは、2011年「高齢者の居住安定確保に関する法律」改正によって生まれた高齢者向け住宅です。
60歳以上の高齢者または要介護・要支援の認定を受けている人が入居し、必要に応じて支援・介護等のサービスを受けていくことができる施設です。60歳以上であれば、介護保険の認定外の元気な高齢者、またご夫婦一緒でも入居可能です。

健やかでは、入居者様のご家族の方々が来訪した際に宿泊利用できるゲストルームをご用意しました。離れて暮らすご家族に気軽に会いに来て頂きたくサービスを提供しています。
親戚の家に泊まりに来たように、入居者様とのゆんたく(おしゃべり)を楽しんだり、空と海と太陽をいっぱい感じながら、ゆっくりと沖縄旅行を過ごされたい方にもご利用頂けます。
| 宿泊可能期間 | 一泊~長期まで可能です。 ご相談ください。 |
|---|---|
| 宿泊料金 | お一人様 5,000円 ※お二人目からはご相談ください。 |
| 設備 | シャワー、洗面所、トイレ、洗濯機、乾燥機、冷蔵庫、台所、食器類 |
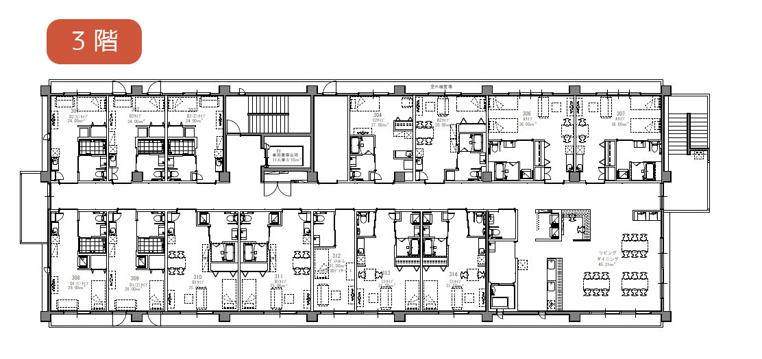
| 3 階 | 【居室】13室(24.00㎡~36.00㎡) 各室にトイレ・洗面台・シャワー室(8室に浴槽付) キッチン・洗濯機置き場・収納・ナースコール設置 【共用設備】 リビング・ダイニング・キッチン・浴室・洗面台・洗濯室 |
|---|---|
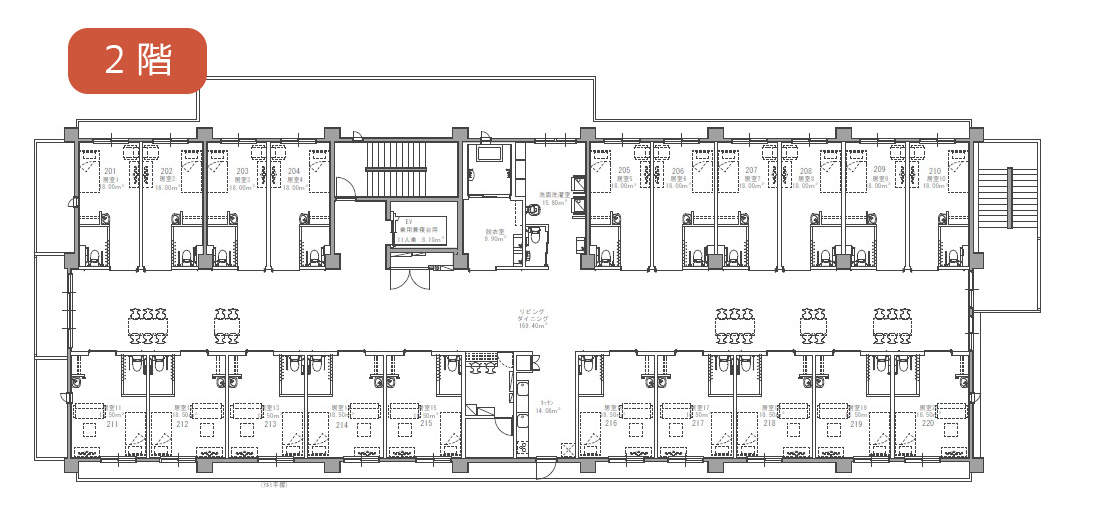
| 2 階 | 【居室】20室(18.00㎡~18.50㎡) 各室にトイレ・洗面台・収納・ナースコール設置 【共用設備】 ホール(食堂)・調理室・浴室・洗面台・洗濯室 |
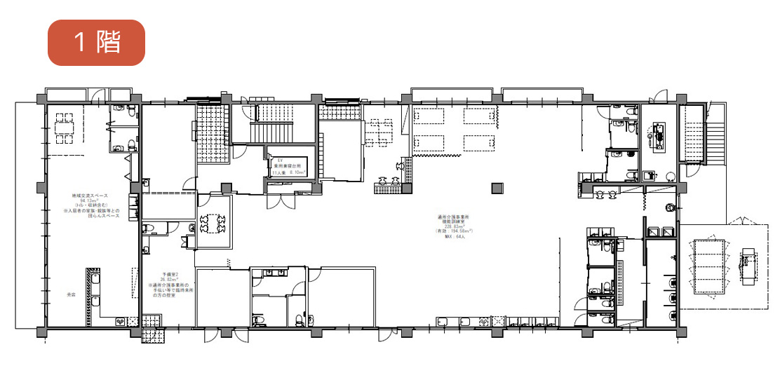
| 1 階 |
・機能訓練もできるデイサービス(介護保険利用) ・地域交流センター(カフェ・レストラン・売店・体操教室 等) |
| 施設名 | サービス付き高齢者向け住宅 健やか |
|---|---|
| 所在地 | 〒904-2307 沖縄県うるま市与那城饒辺239番地2 |
| 電話番号 | 【TEL】098-989-5462【FAX】098-989-5488 メールでのお問い合わせはコチラ |
| 階数 | ㎡数 | トイレ | 洗面 | 浴室 | 台所 | 収納 | 家賃 | 共益費 | 管理費 | 生活費 |
|---|---|---|---|---|---|---|---|---|---|---|
| 2F | 18.00㎡ | 〇 | 〇 | × | × | 〇 | 45,000円 | 20,000円 | 20,000円 | 9,000円 |
| 2F | 18.50㎡ | 〇 | 〇 | × | × | 〇 | 46,000円 | |||
| 3F | 24.00㎡ | 〇 | 〇 | シャワーユニット | 〇 | 〇 | 60,000円 | 25,000円 | 20,000円 | 9,000円 |
| 3F | 27.00㎡ | 〇 | 〇 | ユニットバス | 〇 | 〇 | 67,500円 | |||
| 3F | 28.00㎡ | 〇 | 〇 | シャワーユニット | 〇 | 〇 | 70,000円 | |||
| 3F | 30.00㎡ | 〇 | 〇 | ユニットバス | 〇 | 〇 | 85,000円 | |||
| 3F | 31.50㎡ | 〇 | 〇 | ユニットバス | 〇 | 〇 | 88,500円 | |||
| 3F | 35.00㎡ | 〇 | 〇 | ユニットバス | 〇 | 〇 | 97,500円 | |||
| 3F | 36.50㎡ | 〇 | 〇 | ユニットバス | 〇 | 〇 | 100,000円 |
※施設で食事を用意する場合は1食500円。入居者がご自分で(調理等をして)用意する場合は実費でお願いします。
お問い合わせ